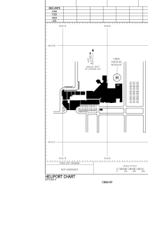
CNM3 - Sturgeon Falls (West Nipissing Gen Hospital)
Situé à , Canada
ICAO - CNM3, IATA -
Données fournies par AirmateInformation générale
Coordonnées: N46°22'24" W79°54'58"
Élévation : 680 feet MSL.
Variation magnétique : -10.9333° East Voir autres Aéroports à Ontario
Données opérationnelles
Special qualification required
Heure actuelle UTC:
Heure actuelle locale:
Fréquences de communication: [VIEW]
Pistes:
| Identifiant RWY | QFU | Longueur (ft) | Largeur (ft) | Surface | LDA (ft) |
| 01H | 0° | 86 | 86 | ASP | |
| 34H | 0° | 86 | 86 | ASP |
Coordonnées de l'aéroport
Adresse: Canada



